AM POSTBAHNHOF

Architektur & Bauprojekt

Mit dem Projekt AP15 entstand im Berliner Media-Spree-Areal ein zukunftsweisender Office-Hub, der historische Substanz, markante Architektur und moderne Arbeitswelten in einem einzigartigen Ensemble vereint.

Eingebettet zwischen denkmalgeschützter Architektur und zeitgenössischen Neubauten ergänzt das neue Bürogebäude dieses Umfeld mit rund 16.000 Quadratmetern Bürofläche. Mit dem Neubau greifen driessenarchitekten die baulichen Elemente der historischen Nachbarn – Viadukt, Wasserturm und ehemalige Drehscheibe – auf und interpretieren sie in einer eigenständigen, zeitgemäßen Architektursprache neu.

Sichtbeton, klare Strukturen und eine reduzierte Materialität schaffen eine enge Verbindung zum Bestand und somit eine optimale Grundlage für ein innovatives Bürokonzept.

Starke räumliche Statements

Bereits die großzügige, zweigeschossige Lobby setzt ein starkes räumliches Statement. Einer der beiden Haupteingänge führt durch das mittlere Viadukt direkt in das Gebäude und ist an eine parkähnliche Außenanlage angebunden, in die auch die restaurierte historische Drehscheibe integriert wurde.

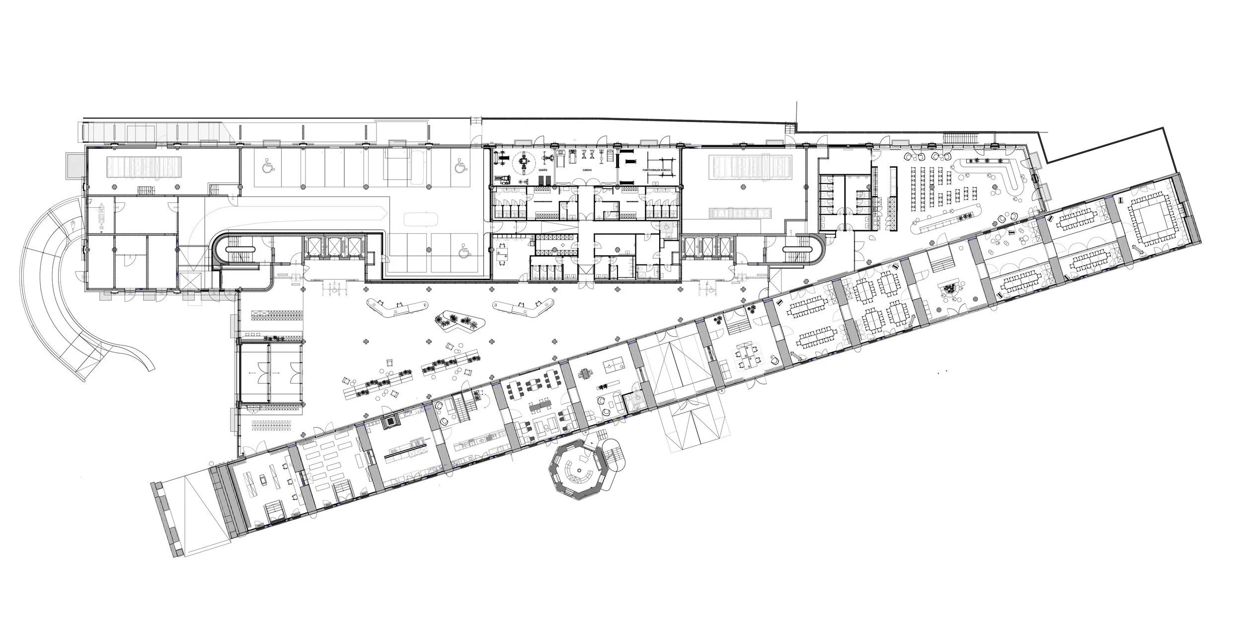
Flexibel, funktional und zukunftsfähig

Durch die frühzeitige Einbindung in den Planungsprozess konnten bereits vor Ausbaubeginn intensive Workshops mit unterschiedlichen Nutzergruppen sowie dem Projektteam durchgeführt werden. Ziel war die Entwicklung eines flexiblen, funktionalen und zukunftsfähigen Flächenprogramms in enger Abstimmung mit Hochbau- und TGA-Planung.

Wichtig war es, ein Umfeld zu schaffen, das Identität stiftet, Austausch fördert und gleichzeitig Raum für Rückzug bietet.

Facettenreiche Arbeitswelten

Die Bürogeschosse sind als offene Arbeitslandschaften organisiert und zeichnen sich durch flexible, auf unterschiedliche Anforderungen zugeschnittene Workspaces aus.

Die zentrale Funktionskerne vereinen Pantries, Rückzugsnischen und Stauraum und werden durch akustisch wirksame Verkleidungen in geschossprägenden Farbtönen inszeniert.

Zusammenspiel mit der Architektur

Die markante Stützenkontur der Architektur wird subtil in die Gestaltung integriert und schafft eine Verknüpfung zwischen historisch-industrieller Hülle und dem neuen, multifunktionalen Innenleben.

Über alle Bereiche hinweg wurde Wert auf ein harmonisches Zusammenspiel mit der Architektur, eine nachhaltige, regionale Ausstattung und die authentische Wirkung der eingesetzten Materialien gelegt. So entstand eine Arbeitswelt, die Gemeinschaft, Transformation und Zukunftsfähigkeit räumlich erlebbar macht.

Event- und Meetingflächen

In den oberen Etagen ergänzen flexibel nutzbare Event- und Meetingflächen das Raumangebot und ermöglichen sowohl klassische Konferenzformate

als auch informellen Austausch.